Project 8 Utiliteitsbouw
Het 8e project gingen we een utiliteitsgebouw tekenen. Dit is een al gebouw gevestigd in Rotterdam. Het gebouw bestond uit een kantoor met een kantine en aan het kantoor zat een loods. Dit gebouw is ontwikkeld door Hercuton.

8.01 Oriënteren en bouwmethode

Met deze opdracht hebben we een start gemaakt aan ons nieuwe project Utiliteitsbouw. We zijn gestart met het analyseren van het project, waarbij we hebben gekeken naar de gebruikte materialen en de verschillende bouwmethodes die worden gebruikt. Daarnaast hebben we een mappenstructuur gemaakt, hiernaast zie je een voorbeeld van hoe dat eruit ziet. Ook hebben we een bouwanalyse gemaakt, een analyse van de hoofd draag constructie en nog veel meer.

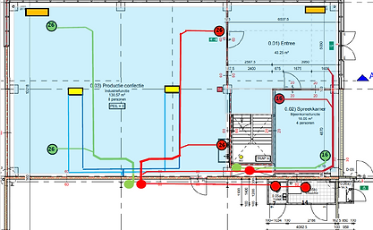
8.03 TO en 3D

In deze opdracht moesten we het volledig al bestaande gebouw van intervlag natekenen met daarin verschillende sheets van bijvoorbeeld de gevels een doorsnedes, de plattegronden, de vloerplannen en verschillende details. we hebben gebruik gemaakt van het tekenprogramma Revit Hierbij zie je een voorbeeld van hoe zo'n tekening eruit ziet, specifiek voor de gevels en doorsnedes.


8.04 uitrekstaat + 2jours
Voor deze opdracht hebben we ons een werkbegroting gemaakt van de ruwbouw. hiervoor hebben we gebruik gemaakt van het programma 2jours. alle hoeveelheden konden we uit ons Revit-model halen.


Ook hebben we een excel bestand aangemaakt waar we alle hoeveelheden die in onze begroting staan moeten onderbouwen.


8.05 Bouwplan toetsing
In dit onderdeel gingen we na welke eisen van toepassing zijn voor jouw ontwerp. hier heb ik zowel de eisen als de controle hierop benoemd. Ook heb ik hierbij een ruimtestaat gemaakt de bouwbesluitbenaming van de verschillende ruimtes.
Om een goed ontwerp te maken moet deze voldoen aan het Bouwbesluit. In dit onderdeel gaan we na welke eisen van toepassing zijn voor jouw ontwerp.
We hebben de eisen benoemd en de controle hierop.
Deze onderdelen hebben we uitgewerkt:
Afdeling 2.5 Trap
Afdeling 2.10 Beperking uitbreiding brand (artikel 2.83 en 2.84)
Afdeling 3.6 Ventilatie
Afdeling 3.11 Daglicht
Afdeling 5.1 Energiezuinigheid (artikel 5.3)
